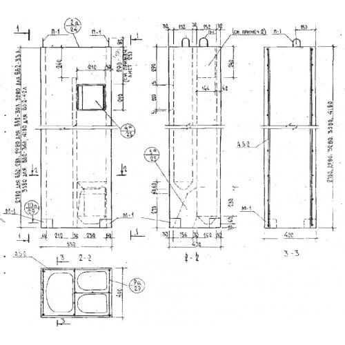
ВБ 2-30 вентблоки

Чертеж изделия:
Характеристики изделия:
ПараметрЗначение
длина550 мм
ширина400 мм
высота2980 мм
масса675 кг
нормативный документСерия Б1.134.1-7

ВБ 2-30 Вентблоки по Серии Б1.134.1-7.