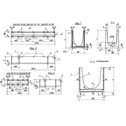
ЛК 73.70.75

Чертеж изделия:
Характеристики изделия:
ПараметрЗначение
длина730 мм
ширина700 мм
высота750 мм
вес425 кг
серия3.818.9-2

ЛК 73.70.75 Лотки для каналов навозоудаления по серии 3.818.9-2.