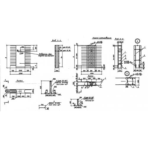
БС 60.12 блок стенки

Чертеж изделия:
Характеристики изделия:
ПараметрЗначение
длина6000 мм
ширина1200 мм
высота500 мм
вес8130 кг
нормативный документСерия 3.503.1-94

БС 60.12 Блоки стенок по Серии 3.503.1-94.