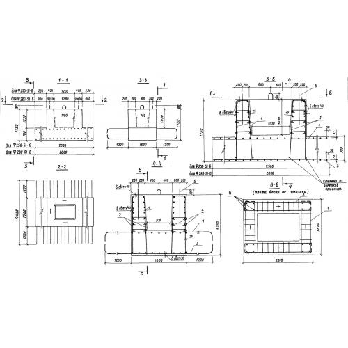
Ф 280-51

Чертеж изделия:
Характеристики изделия:
ПараметрЗначение
длина4400 мм
ширина2800 мм
высота1750 мм
вес14000 кг
серия3.503.1-76

Ф 280-51 Симметричные блоки фундамента по серии 3.503.1-76.