РН 6
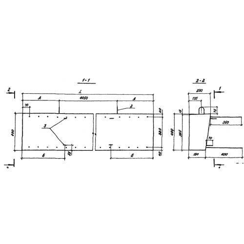
Характеристики изделия:
| Параметр | Значение |
|---|---|
| длина | 7870 мм |
| ширина | 230 мм |
| высота | 400 мм |
| вес | 1650 кг |
| серия | 3.503.1-75 |
Цена:
Рассчитать стоимостьРН 6 Блоки насадки по серии 3.503.1-75.
| Параметр | Значение |
|---|---|
| длина | 7870 мм |
| ширина | 230 мм |
| высота | 400 мм |
| вес | 1650 кг |
| серия | 3.503.1-75 |
РН 6 Блоки насадки по серии 3.503.1-75.
