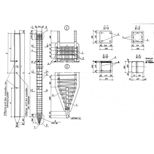
С 100-30

Чертеж изделия:
Характеристики изделия:
ПараметрЗначение
длина10000 мм
ширина300 мм
высота300 мм
вес2300 кг
серия3.501.1-153

С 100-30 Сваи с прямоугольным сечением по серии 3.501.1-153.