С 6-30
Характеристики изделия:
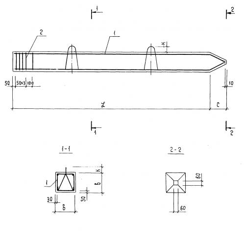
| Параметр | Значение |
|---|---|
| длина | 6250 мм |
| ширина | 300 мм |
| высота | 300 мм |
| вес | 1380 кг |
| серия | 3.015-5/86 |
Цена:
Рассчитать стоимостьС 6-30 Сваи прямоугольного сечения по серии 3.015-5/86.
| Параметр | Значение |
|---|---|
| длина | 6250 мм |
| ширина | 300 мм |
| высота | 300 мм |
| вес | 1380 кг |
| серия | 3.015-5/86 |
С 6-30 Сваи прямоугольного сечения по серии 3.015-5/86.
