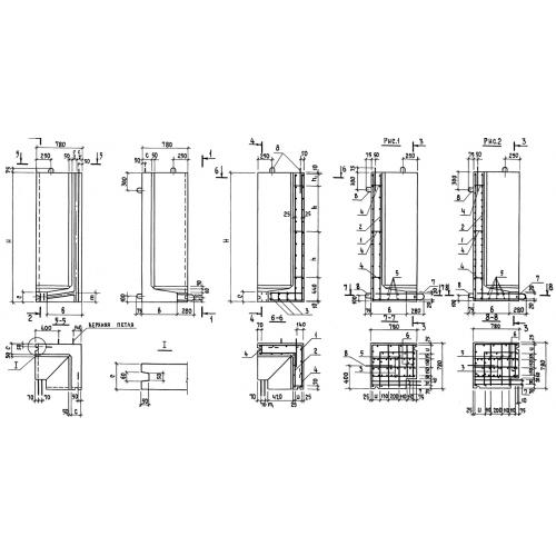
БУ 36-8

Чертеж изделия:
Характеристики изделия:
ПараметрЗначение
длина780 мм
ширина780 мм
высота3800 мм
масса2730 кг
нормативный документСерия 3.006.1-3/83

БУ 36-8  Блоки тоннелей угловые Серия 3.006.1-3/83.