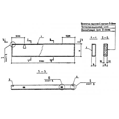
ПСД 60.18.25

Чертеж изделия:
Характеристики изделия:
ПараметрЗначение
длина5980 мм
ширина250 мм
высота1780 мм
вес4300 кг
серия1.832.1-9

ПСД 60.18.25 Панели стеновые двухслойные по серии 1.832.1-9.