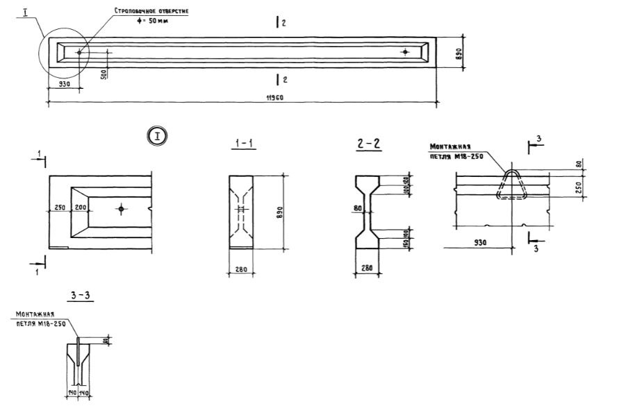
БСП 12 Балки для зданий с плоской кровлей

Чертеж изделия:
Характеристики изделия:
ПараметрЗначение
длина11960 мм
ширина280 мм
высота890 мм
масса4500 кг
нормативный документСерия 1.462.1-1/88

БСП 12   Балки стропильные для зданий с плоской кровлей Серия 1.462.1-1/88.