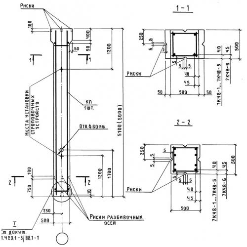
7К 48 колонны

Чертеж изделия:
Характеристики изделия:
ПараметрЗначение
длина5100 мм
ширина500 мм
высота500 мм
масса3300 кг
нормативный документСерия 1.423.1-3/88

7К 48 Колонны Серия 1.423.1-3/88.