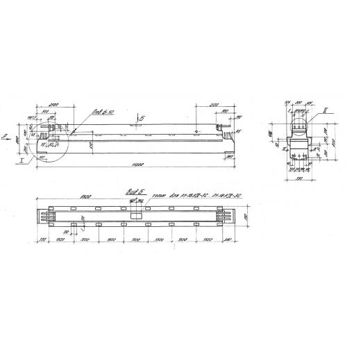
Р 1

Чертеж изделия:
Характеристики изделия:
ПараметрЗначение
длина11200 мм
ширина550 мм
высота800 мм
масса8330 кг
нормативный документСерия 1.420.1-20с

Р 1 Ригели Серия 1.420.1-20с.