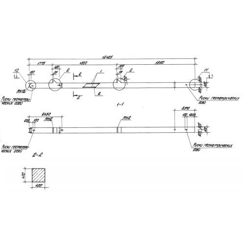
К 21 колонны

Чертеж изделия:
Характеристики изделия:
ПараметрЗначение
длина12425 мм
ширина400 мм
высота400 мм
масса5100 кг
нормативный документСерия 1.420-35.95

К 21 Колонны Серия 1.420-35.95.