П 24.9.35

Чертеж изделия:
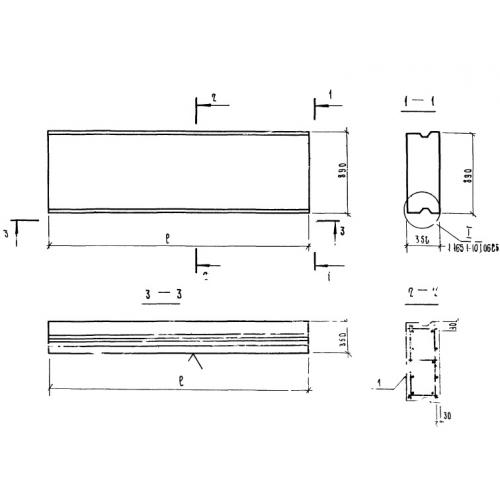
Характеристики изделия:
ПараметрЗначение
длина2370 мм
ширина890 мм
высота350 мм
вес530 кг
серия1.165.1-10

П 24.9.35 Панели покрытия по серии 1.165.1-10.