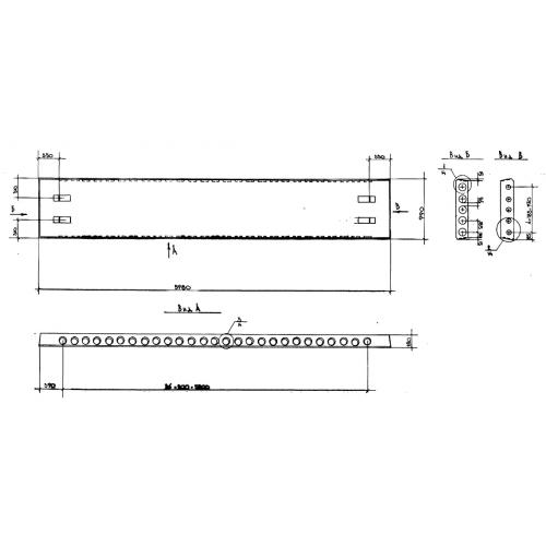
ПК 60.10

Чертеж изделия:
Характеристики изделия:
ПараметрЗначение
длина5980 мм
ширина990 мм
высота220 мм
вес1850 кг
серия1.141.1 КЛ-3.

ПК 60.10 Плита перекрытия с круглыми пустотами по серии 1.141.1 КЛ-3.