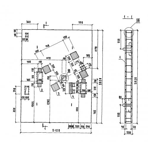
ПЛ 100-21 плита перекрытия шахты лифта
Характеристики изделия:
| Параметр | Значение |
|---|---|
| длина | 2120 мм |
| ширина | 2820 мм |
| высота | 200 мм |
| масса | 2900 кг |
| нормативный документ | Серия 1.089.1-1 |
Цена:
Рассчитать стоимостьПЛ 100-21 Плиты перекрытия шахт лифтов Серия 1.089.1-1.
