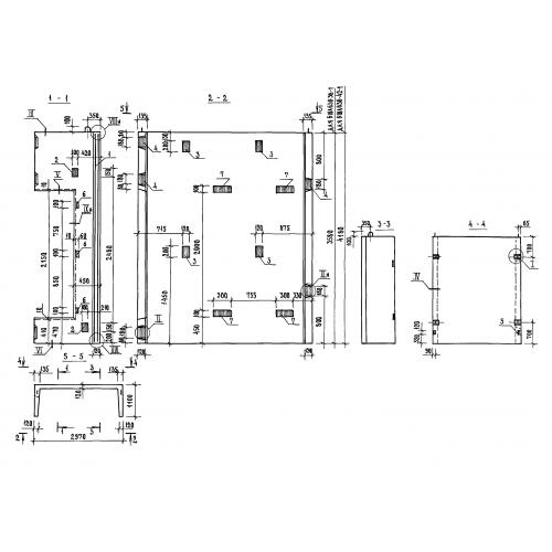
БШЛ 63-36 блок шахты лифта основной

Чертеж изделия:
Характеристики изделия:
ПараметрЗначение
длина2970 мм
ширина1100 мм
высота3580 мм
масса4970 кг
нормативный документСерия 1.089.1-1

БШЛ 63-36 Блоки шахт лифтов Серия 1.089.1-1.