ПРС 68.15 плиты сантехнические

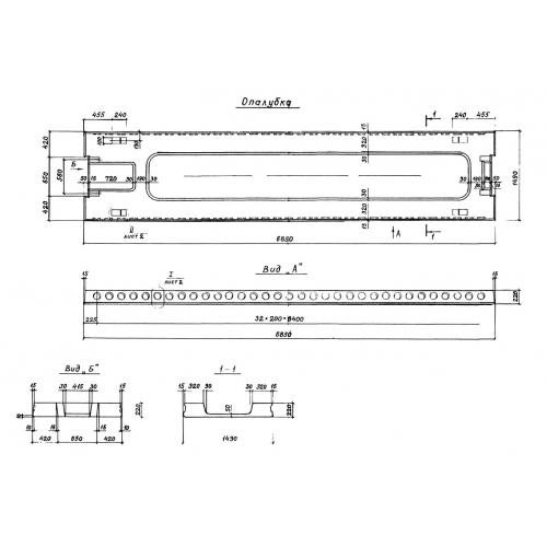
Чертеж изделия:
Характеристики изделия:
ПараметрЗначение
длина6850 мм
ширина1490 мм
высота220 мм
масса3625 кг
нормативный документСерия 1.041.1-3

 ПРС 68.15  Плиты ребристые сантехнические Серия 1.041.1-3.