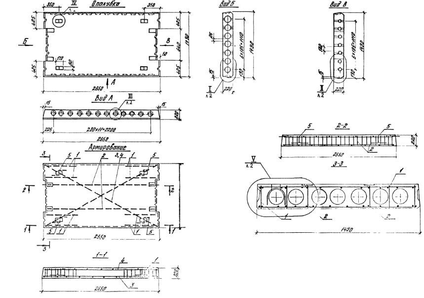
ПК 27.15 плиты связевые межколонные

Чертеж изделия:
Характеристики изделия:
ПараметрЗначение
длина2650 мм
ширина1490 мм
высота220 мм
масса1200 кг
нормативный документСерия 1.041.1-3

ПК 27.15  Плиты связевые Серия 1.041.1-3.