7ПП 12 перемычки плитные

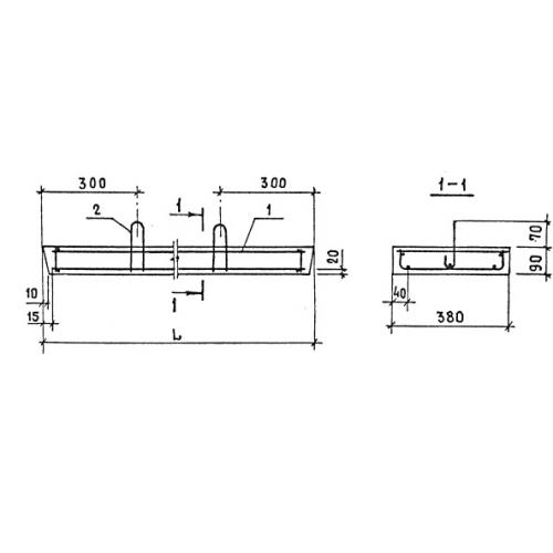
Чертеж изделия:
Характеристики изделия:
ПараметрЗначение
длина1160 мм
ширина380 мм
высота90 мм
масса100 кг
нормативный документСерия 1.038.1-1

7ПП 12  Железобетонные перемычки плитного типа Серия 1.038.1-1.