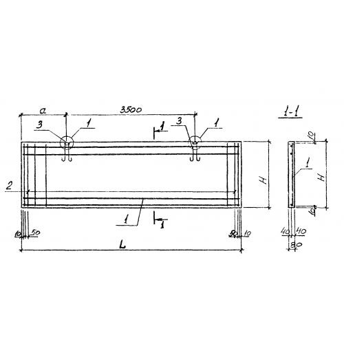
ПГ 60.15 панели перегородки

Чертеж изделия:
Характеристики изделия:
ПараметрЗначение
длина5980 мм
ширина80 мм
высота1485 мм
масса890 кг
нормативный документСерия 1.030.9-2

ПГ 60.15   Перегородки панельные зданий промышленных и сельскохозяйстыенных предприятий Серия 1.030.9-2.