2КД 3.42

Чертеж изделия:
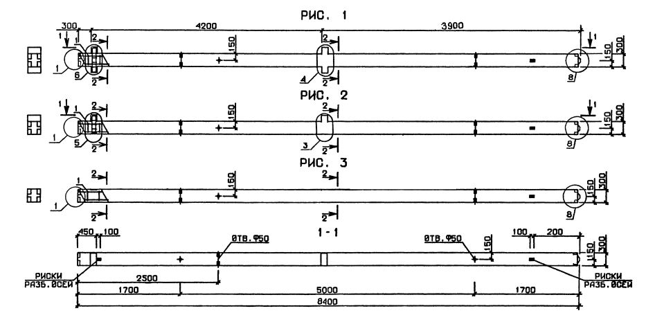
Характеристики изделия:
ПараметрЗначение
длина8400 мм
ширина300 мм
высота600 мм
масса2040 кг
нормативный документСерия 1.020.1-3пв

2КД 3.42  Колонны двухконсольные Серия 1.020.1-3пв.